Zum Hauptinhalt springen
Projekte
Einfamilienhaus
Mehrfamilienhaus
Gastronomie
Industrie
Diverses
Kontakt
Menü
Projekte
Einfamilienhaus
Mehrfamilienhaus
Gastronomie
Industrie
Diverses
Kontakt
+43 4714 299 88
info@planart.at
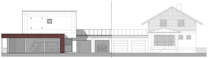
Villa Friedheim
Schmelz 20
9772 Dellach/Drau
Einfamilienhaus
Einfamilienhaus
Oberdrauburg
2014
Zurück
Weiter